VEDPANNOR, pyrolytiska vedpannor, kombipannor, underförbränningspannor, pannor för fasta bränsle, pannor för centraluppvärmning
Polttopuun energiapitoisuus (lämpöarvo) 20 % kosteuspitoisuudella:
- Saarihalot – 1650 kWh/pm3
- Koivuhalot – 1500 kWh/pm3
- Havupuunhalot – 1300 kWh/pm3
- Haavanhalot 850 – kWh/pm3
- Harmaan lepän halot – 700 kWh/pm3
(pm3 – pinokuutiometri)
Keskikokoisen omakotitalon lämmitystarve vuodessa on 150 kWh/m². Jos puukattilan hyötysuhde on 80 %, silloin talon neliömetriä kohtaan tarvitaan vuodessa halkoja 150/(1500×0,8) = 0,125 pm3/v
150 m2 talon lämmittämiseksi kuluu vuodessa halkoja 0,125 × 150 = 18,75 pm3
1 pm3 koivuhalkoja maksaa n. 90 eur
....................................................................................................................................

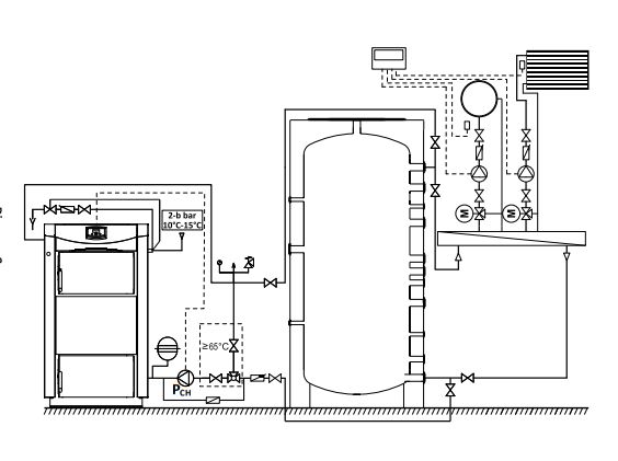
Tarjous PyroBurn Alpha PLUS 30
1 kpl. BURNiT PyroBurn Alpha PLUS 30 käänteispalokattila 30 kW
BURNiT PyroBurn Alpha PLUS 30 manual
1 kpl. H-savukaasutermostaatti 50 – 300 °C
1 kpl. BVTS jäähdytysventtiili 1,3 m, 97 °C
1 kpl. Eristetty 1500 l ovaalivaraaja, sisään rakennetulla käyttöveden kierukalla 15 m
1 kpl. Käyttöveden termostaattinen sekoitusventtiili 35-65°C
1 kpl. Latauspumppupaketti Laddomat 21-60, 72 ºC, R32
1 kpl. Paisunta-astia VRV 200 l
1 kpl. Lämpöparoni-sähkölämmityselementti 6 kW, 435 mm
1 kpl. Tech i-2 -lämmönsäädin kahdelle piirille
2 kpl. TECH lämmityspiirin 3-tie sekoitusryhmä
1 kpl. Rahti Suomeen
Hinta yhteensä: xxxx eur (sis. ALV:in)
Myyntiehdot ja takuuehdot löydät:
https://lvi123.fi/tilausohjeet

